Камінна топка Hoxter UKA 69/48/69/51h
- Бренд: Hoxter
- Країна виробник: Чехія
- Гарантія: 6 років
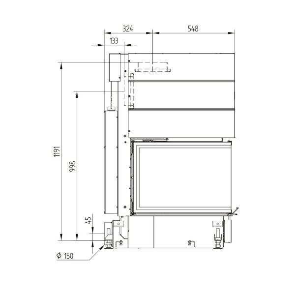
- Розміри ВхШхГ: 1306x529x880 мм
- Вага: 260кг
- ККД: 80%
- Діаметр димоходу: 180 мм
- Діаметр допливу повітря: 125 мм
- Потужність min: 6 кВт
- Потужність max: 12 кВт
ОПИС ТОВАРУ
Особливості моделі
- Вид скла: трьохстороннє
- Метод відкриття дверей: підйом вверх
- Ізоляційний матеріал: шамот
- Система самоочистки скла: так
- Система вторинного допалу: так
Камінна топка Hoxter UKA 69/48/69/51h
Hoxter UKA 69/48/69/51h - це тристоронній камін з cклом яке відкривається підняттям вгору.
Цю топку можна використовувати для опалення будинку із застосуванням повітряної розводки тепла по кімнатах. Особлива конструкція димозбірніка дозволяє знімати більше тепла з димових газів. Камін Hoxter має беззольникову систему, що є ознакою топок орієнтованих на опалення.
У топок Hoxter завжди чисте скло, завдяки механізму подачі повітря зверху на скло в співвідношенні 80% і 20% знизу. Плюсом є і герметичний забір повітря з вулиці з рухомим механізмом, що не дає конденсату при перепаді температур зашлаковувати трубу для подачі повітря з вулиці.
Для камери згоряння Hoxter використовує високоякісний ізоляційний матеріал шамот. Шамот може витримувати великі температури, до 1140 С. Такі температурні режими сприяють міцності і стійкості до механічних пошкоджень на відміну від необпалених матеріалів. Також можлива варіація кольору світлий і темний шамот (не фарбований, а повністю наповнений кольором).
Плюсом є і герметичний забір повітря з вулиці з рухомим механізмом, що не дає конденсату при перепаді температур зашлаковувати трубу для подачі повітря з вулиці. Отримуючи кисень з вулиці камін не випалює його з приміщення, відповідно під час роботи каміна перебувати в приміщенні комфортно.
Для камінної топки Hoxter можна встановити автоматичну систему контролю горіння.




